用户需求书
一、项目概况
1.项目名称:广州鲁迅纪念馆《中国先锋艺术——鲁迅与版画》陈列展览服务项目
2.项目地点:广州市越秀区文明路215号 广州鲁迅纪念馆二楼临展厅
3.项目概况:广东省博物馆(广州鲁迅纪念馆)文明路馆区包括广州鲁迅纪念馆、中国国民党第一次全国代表大会旧址和广东贡院明远楼。
站在“两个一百年”奋斗目标的历史交汇点上,广东省博物馆(广州鲁迅纪念馆)正以“平安粤博、优美粤博、学术粤博、品质粤博、创新粤博”为发展理念,助力广东文化强省建设,持续推动中国特色世界一流博物馆建设,向世界讲好广东故事、湾区故事和中国故事。
(1)项目实施场所:展厅布展总面积约220平方米,利用原展厅为基础进行项目实施。
(2)服务内容:原有展厅的基础装修及临时展览的制作。
制作部分包括但不限于以下方面:
1)基础定制包括:地面处理(地毯、地板、地胶等)、展墙制作、特殊照明设备采购及安装、强弱电布管布线。
2)辅助展具包括:各类展台、展架。
3)多媒体软硬件设备(视频、电子互动制作及其它互动设施)。
4)展览图板: 海报,各层级文字看板、图版。
5)以“中国先锋艺术——鲁迅与版画”临展陈展技术方案,方案作为评标依据。
6)现场实施条件:三通一平达到服务条件要求。
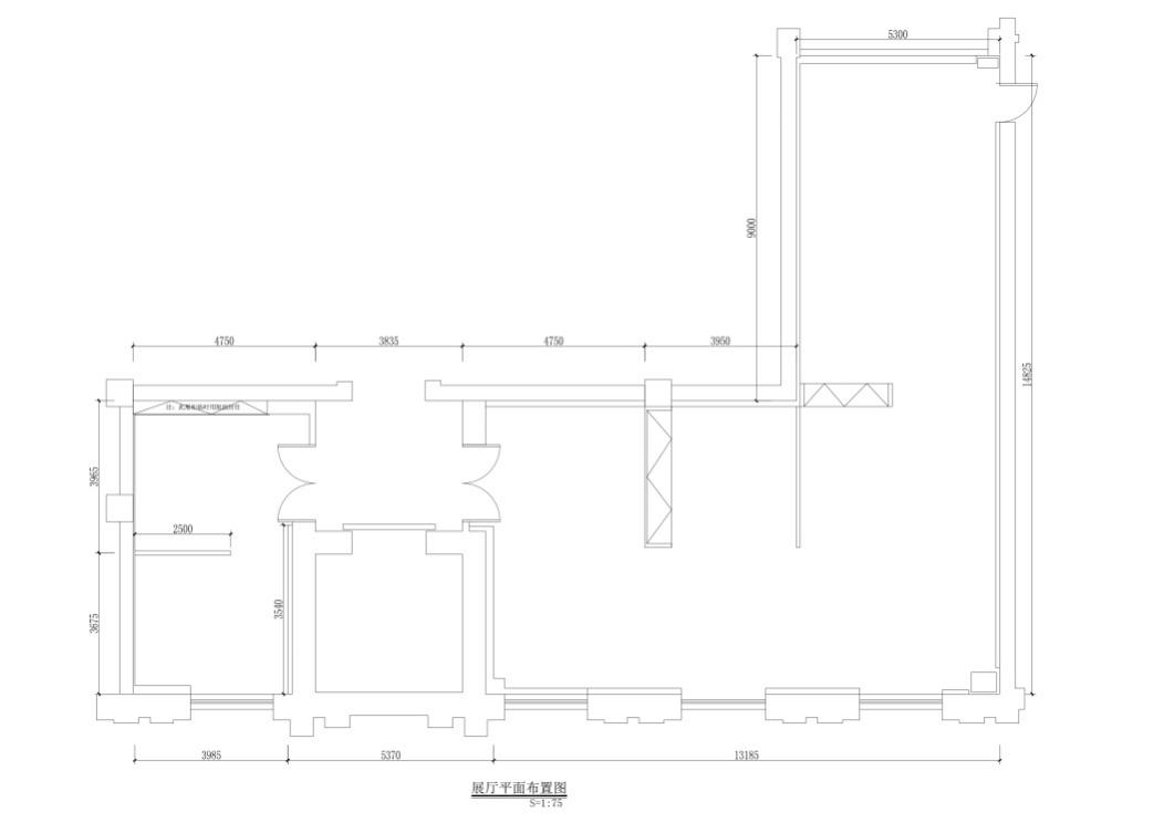
(3)项目平面图:

展厅平面图
4.采购服务内容清单:

5、项目完成时间
展览拟于2023年3月3日开展,该陈列展览服务项目所有内容须于2023年3月1日之前完成,并交付使用。如果采购人调整开展时间,项目完成时间须根据开展时间做相应调整。
6.报价方须知:
(1)采购人不一定接受最低报价,而是采取报价、技术和商务的综合评估法确定承接本项目的候选人。报价单位除按《工程量清单》提交报价外,还应另附《评审表》所列评审项目所需的评审材料,包括但不限于:分析、方案、资质、业绩证明、获奖情况证明等。
(2)本项目费用不得高于8万元,否则视为无效报价。
(3)递交时间:2023年2月13日至2023年2月17日(公示5个工作日)。报价单位的报价文件按本需求书上述要求密封,报价方上述所需资料一式三份提交至广州鲁迅纪念馆(广州市越秀区文明路215号)。该报价文件原件必须一并放在密封文件袋内。密封件上标明“《年画里的中国》图录出版项目”。
(4)联系人:彭老师/潘老师 020-83815803
二、项目总体要求
1.本项目为布展及配套服务采购项目,报价上限8万元,采用总价包干形式。
2.所有布展定制实施、设备采购配套等必须严格按照采购人要求完成,在项目实施过程中,必须服从采购人及相关部门的监督、管理和指挥。
3.必须认真做好安全工作,并满足采购人在项目实施期间的运营要求,不得对观众游客和馆方工作人员造成滋扰。
4.不可破坏原有的建筑结构和装饰。
三、施工的具体要求
1.陈展技术方案要求:
1.1力求使展厅空间与建筑空间、展览内容完美结合。陈展思路严密、清晰,相互呼应,相得益彰,浑然一体;
1.2展区布局要立意新颖,富有创意,布局合理,功能完善。展区布局要为内容和功能服务,力求在功能分区、展览空间、流程以及通风、采光、节能等问题上下功夫,力争形式与内容完美结合。
2.基础装饰制作定制要求:
2.1 装饰装修应满足展览项目的要求,材料、结构和安装方式应科学、环保;
2.2装饰应确保安全可靠,结构合理、并保证其强度、稳定性和可靠性达到采购人的要求;
2.3装修的结构完善应与展示主题以及各展项的展示要求相结合;
2.4展厅内装修材料的品种、规格、性能应符合国家现行有关标准的规定,一律选用符合防火要求的阻燃和难燃材料,严禁使用国家明令淘汰的材料;
2.5材料在3年内不得出现明显变质,表面装饰涂覆材料至少三年内不得出现明显褪变色;
2.6使用的各种材料不得对环境和人员造成污染和伤害,其所含有害物质溢出量不能高于国家规定的标准,有放射和电磁辐射的用材要符合国家防护规定;
3.专业布展制作定制要求:
3.1负责全部展项及设备的采购、制作、安装。(属政府集中采购的项目除外)科学合理地安排展览的信息,以使观众轻松容易地接受展览要传递的元素和信息。
3.2根据展区、主题所需,使陈列、艺术创作设施达到实用、美观、安全等各方面的要求。
3.3展厅环境和气氛营造要典雅、庄重、大方,与建筑空间、展览内容完美结合,相互呼应,相得益彰,浑然一体。
4.展陈配套制作定制要求:
展览设备如展具、灯具、电源等基本硬件,要求坚固、美观、实用,符合环保、防火、节能和安全防范的要求。展厅中的独立展台应考虑相应的电源和光源,以及这些独立展台在进行一定的调整(增减、移位)时电源和光源能给予很好的配合。原则上反对独立展台与地面完全固定。
5.展项整体制作的要求
展示内容的策划与制作必须结合整体的陈展技术方案,达到主题鲜明、具有视觉的冲击力,可逆性的修改,满足采购人的需求等;
6.电气安装实施定制配套要求:
6.1能集中、远距离、分组控制展厅的灯光,方便节电和管理。
6.2照度适宜:陈列照明中对不同的展品应按展陈效果需要,分别采取不同的照明灯具。照度合适,展厅里一般照明与特殊照明需参照博物馆行业标准实施,以达到理想的照明效果。
6.3照度均匀:一般情况下展品的照度要均匀,重点辅助展品应根据具体的对象采取不同的照明方式。
6.4工作照明是指安装在展厅内除展品照明以外的工作用光。工作照明应与安防联动,并满足安防摄像的照度,以及满足对“光害”消除与控制的要求。
6.5应急照明:各展厅内必须按国家规范配置应急照明系统。
6.6灯具质量要求:要选用低能耗、高稳定性的照明灯具。
四、项目实施要求
1.项目实施原则和技术规范
1.1实施原则:供应商按照项目业主提供的项目建设需求书约定范围执行,包括布展展区域内施工(包工、包料、包工期、包质量、包安全、包文明施工、包承包范围内工程验收通过、包运营培训、包移交、包结算)的实施和资料整理配合等。
1.2技术规范:本项目采用国家(行业)、省、市现行最新相关规范和标准,若无国家标准,而采用企业、行业标准的,必须提供企业、行业标准的文本文件作为本项目的技术规范。
2.确保工程质量的措施
2.1建立健全结构,装修从材料、半成品、成品进场,施工安装直至交付验收的质量保证体系,并落实到人。
2.2严格贯彻“把关”和“积极预防”相结合的质量管理方法,坚持预告定标准、定样板、定材料、定做法,手续要齐全。凡进场材料、半成品和加工品,包括建设单位负责供应的部分设备,都要实行验收手续,索要合格证或检测报告书。无合格证或外观不符合标准者不得进场。
2.3以工艺卡、大样图和样板作为技术交底的主要手段,凡是无工艺卡或书面交底的项目,施工员可拒绝施工。
2.4所有参加装修施工的技术员、施工员都要预审和熟悉图纸及洽商记录。
2.5本工程实行全面质量管理、文明施工,整个工程提前组织培训,统一思想,熟悉操作。
2.6按进度计划施工,严格技术管理,当进度与质量发生矛盾时,要服从质量,承包任务者首先要承包质量。
2.7所有装修必须注意色调、质感的统一。例如木料的纹理、色彩、规格都要经过挑选。
2.8强调装修项目的基层施工质量,基层要做到平整、垂直和阴阳角方正,只有做好基层,才能保证饰面层质量。
2.9加强质量监督检查,采取专业检查与自检相结合的检查方法,并以自检为主,坚持贯彻执行自检、互检、交接检的三检制度与挂牌制度,对工程质量要求一丝不苟。
3.确保工期的措施
在确保质量的要求下对工期进度的控制不但是在本布展工程的阶段性工期中,对场外加工进度亦有同样要求,要在保证安全的基础上,确保施工进度,以总进度网络图为依据,按不同施工阶段、不同专业工种分解为不同的进度分目标,以各项技术、管理措施为保证手段,进行施工全过程的动态控制。
4.布展实施的其他要求
供应商在进行项目实施过程中必须遵循国家相关通用标准和行业规范;遵循相关防火、环保要求;遵循优化、深化、艺术及媒体数字内容创作成果与采购人、监理单位要求的原则进行。供应商必须协助采购人办理公共防疫的相关手续,并承担相关费用。供应商必须负责布展实施过程中产生的垃圾处理及相关费用。
5.项目实施的具体要求
施工质量标准:本项目的施工质量标准应达到合格等级。同时,执行国家规定的相关工程建设标准强制性条文要求,执行《建筑装饰装修工程质量验收规范》(GB50210-2001)、《建筑内部装修设计防火规范》(GB50222)、《室内装饰材料有害物质限量》和《建筑材料放射性核限量》、博物馆陈列展览工程的有关规范和技术标准、其他国家规定的相关验收规范等相关标准。
五、技术资料及其他要求
供应商应向采购人提供以下中文技术资料:
1.技术说明书(含电气原理图及其符号说明);
2.安装图纸(部件安装图,电气接线图);
3.安装、调试、使用保养维修手册(或说明书);
4.产品技术标准(含验收标准)和试验方法,产品原产地出厂合格证;
5.展品的出厂检验报告、装箱单;
六、项目工作要求
1、由采购人向供应商提供与展览项目相关的各类文件资料,采购人有权及时对供应商所提交的服务方案提出修改意见和建议,供应商须据此进行修改、调整,直至采购人签字认可方可定稿。采购人享有本项目所有资料的使用权和所有权。
2、供应商完成的一切活动策划方案、工作方案、宣传方案等一切与本项目有关的资料,都必须在项目开始前呈报采购人审核,对采购人提出的修改意见和建议,供应商应积极听取并据此认真进行修改、调整;若供应商不能提出更好的方案又拒不执行采购人的建议,由此而产生的相关费用应由供应商自行承担,若因此造成的工作延误,供应商应承担相关责任与损失。供应商对工作范围内采购人临时提出的工作,须及时完成。
3、供应商应主动提前向采购人索要各类工作所需相关资料,并必须按采购人确认之定稿进行制作,若完全因供应商工作缘故导致提供内容与采购人确认之定稿不一致,从而致使采购人受损,供应商应负责向采购人赔偿经济损失。
4、供应商须根据拟提供的服务方案在响应文件中列明需要采购人配合的工作内容。
5、供应商不得将本项目转包或分包。
6、供应商在成交后必须按照规定给聘用员工购买相应保险,在项目实施过程中,做好各项安全保护工作,严格管理,对他们的行为负全责,如有发生劳资纠纷、意外(包括但不限于:生病、伤亡事故等)或违反规定、触犯国家法律等行为,由供应商承担全部责任,与采购人无关。
七、报价相关要求
(1)本工程的响应报价采用按综合单价包干完成计价方式,由供应商包工,包料、包工期、包质量、包安全、包文明施工等,达到验收规范要求。供应商按采购文件、设计方案(含初步设计图)、工程量清单等范围内自行报出各项综合单价,并结合相关工程量汇总出磋商总价。磋商总价作为价格评审的依据。
(2)项目按实际发生的工程量结算,由供应商提交结算报告并以经采购人审核确认的最终结算金额为准。供应商报价中必须包括工程量清单项目所发生的人工费、材料费、检测费、管理费、利润、项目措施费、规费、税金、安全生产费用、环保费、以及施工过程中包含的所有风险、责任等各项应有费用。供应商漏报或不报,采购人将视为有关费用已包括在工程量清单项目的其它单价及合价中而不予支付。最终结算价不超过采购预算。
八、付款方式
(1)合同签署生效后6个工作日内,成交人以支票或划账的形式向采购人提交合同总额3%的履约保证金。
(2)该项目以最终结算审核价格为准,该项目完成后经采购人书面验收合格后按采购人委托的第三方审核机构的核定价格进行结算。工程施工开始,采购人按项目合同总额50%支付给成交人作为该项目预付款;该项目在展览开幕后10个工作日内,按项目合同总额的30%支付给成交人;该项目工程通过相关验收合格后,成交人递交工程资料及结算资料后10个工作日内,按采购人审核确认的最终结算价支付至合同总价的100%。保修期限内,成交人按照合同约定全面履行完成保修义务,自保修期限届满后10个工作日内,采购人退还成交人全部履约保证金。
九、售后服务和培训要求说明
1.售后服务要求:
1.1保质期不少于壹年(保质期从项目验收合格之日起计算)。
1.2保质期内,所有硬件设备的维修均为免费。
1.3项目展品发生故障,供应商须提供24小时专业工程师电话服务应答,24个小时内提供解决方案;如需要现场服务的,专业工程师应在24个小时内到达现场。特殊情况无法修复的,质保期内供应商应无条件更换新展品或提供代用展品,或采取使展品可正常运转的措施。
1.4保质期内,所有设备维修服务均为上门服务,由此产生的费用均不再额外收取。
1.5保质期结束后,供应商应提供终身售后服务,进行定期维护和修理。三年内展品发生故障到现场维修只收差旅费及材料成件工本费;并在投标文件中提供详细具体的售后服务条款及保证。
2.培训要求:
供应商应为采购人培训2名或以上的技术人员,直到采购人受训人员熟练掌握原理、操作、维修保养技术,由此产生的费用均不再额外收取。
十、验收
1.项目竣工前3天,由供应商通知采购人组织有关人员验收。采购人应在接通知10天内组织验收。
2.验收由合同双方共同进行,邀请第三方(监理)进行验收,所需费用由采购人负责。验收双方应严格按照本项目要求及国家有关规范依据、质量检验标准和操作规程进行验收。验收的内容包括现场制作效果、制作所使用材料是否符合要求及规范,设计图纸及说明书、图纸会审记录、有关变更的书面文件等内容。若经验收后发现有不符合采购文件、投标文件、合同或合同双方协议内容要求的地方,供应商必须进行返工至合格为止,由此产生的费用由供应商自行承担。
3.隐蔽部分项目在供应商自检后填制记录表后通知采购人进行验收,采购人接到供应商通知后2天内到场验收,双方签字确认验收合格进行下一工序。采购人有权提出复查,如复查合格,复查费用由采购人承担。否则,复查费及所需的返修费等完成该项目的费用由供应商承担,工期顺延,直至双方验收合格为止。
4.本项目竣工验收时,双方签字确认,供应商应提供材料产品合格证,同时向采购人提供隐蔽部分项目签证、项目竣工图及所有相关的技术档案资料一式三份。